De omgevingsdialoog voor nieuwbouwplan Korenveld Keldonk is druk bezocht
Op maandag 17 november organiseerde Gemeente Meierijstad – als vervolg op de al eerdere informatiebijeenkomsten – een omgevingsdialoog over het beoogde woningbouwproject Korenveld in Keldonk. Deze bijeenkomst was bedoeld voor omwonenden en geïnteresseerden en vond plaats in ’t Span. Dat het plan leeft in ons dorp was te merken aan de vele bezoekers die al vroeg op de avond aanwezig waren.
Reactieformulier
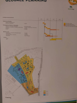
De afgelopen jaren is gewerkt aan een stedenbouwkundig plan, beeldkwaliteitsplan en zijn alvast allerlei noodzakelijke onderzoeken uitgevoerd. Tijdens de omgevingsdialoog heeft de gemeente meer informatie gegeven over de beoogde plannen voor Keldonk. Zo was er een nieuwere plankaart te zien, kaarten van de onderbouwingen en een planning. Er konden vragen gesteld worden en er was ruimte om eventuele suggesties te doen en/of verbeterpunten aan te geven. Daarvoor lagen reactieformulieren op tafel. Een reactie geven kan nog tot 24 november en wel via het reactieformulier op de website van de gemeente.
CPO
Naast de gemeente was ook Area aanwezig om te laten zien waar en welk type sociale huurwoningen zij in het plan gaan laten realiseren (zie onderaan deze pagina op de website van de gemeente). En Vastgoedregiseur was aanwezig om uit te leggen wat het inhoudt om met een aantal mede-bouwers gezamenlijk een aantal CPO-woningen te laten bouwen. Ook die mogelijkheid zit in de 1e fase van uitvoering van plan Korenveld. Degene die daar interesse in heeft, mag daar nu alvast over gaan nadenken. De verwachting is dat medio 2026 gestart zal worden met een eerste inventarisatie van geïnteresseerden en een info-avond over CPO georganiseerd zal gaan worden.
Het Keldonks Journaal was aanwezig en heeft een item over deze avond op hun website staan.






